Arch. DI Robert Schreyl staatl. befugter und beeideter Ziviltechniker
Regensburger Straße 11 3380 Pöchlarn
Tel.:+43 (0)2757 - 20 521 Mobil: +43 (0)664 143 44 10 email: office@architekten-ros.at
Impressum
Projektinformation
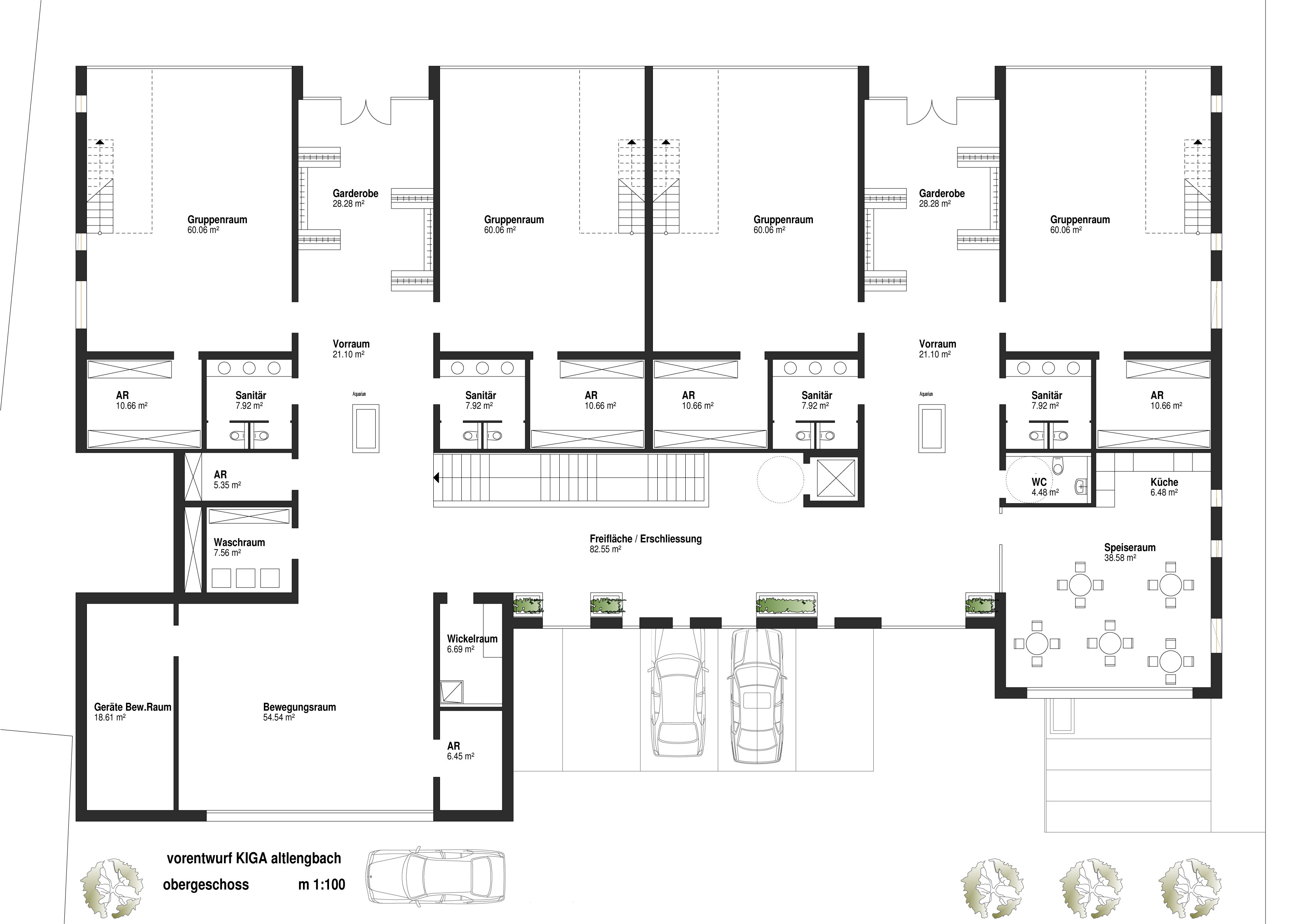
Beschreibung: Vorentwurf für den Neubau einer 4-zügigen Kindertagesstätte
Flächen: Gesamtnutzfläche ca. 800m²
Konstruktion / Fassade: Stahlbeton-Massivbau mit VWS